Вилла в Полоп, Аликанте, Испания 4 спальни, 208м2 №155741
33

ID155741
€ 970 000
- EUR €
- USD $
- RUB ₽
- NOK kr
- GBP £
Описание объекта
Новая роскошная вилла с видом на море в Ла Альберка ПолопСовременный дизайн в тихом горном окружении
Эта исключительная новая вилла расположена в Ла Альберка, тихом жилом районе в горах Полопа. Окруженная лесом и природой, вилла предлагает панорамный вид на Средиземное море, горы и исторический город Полоп. Вилла, спроектированная с вертикальной архитектурной элегантностью, сочетает в себе уединение, функциональность и плавный переход между внутренним и внешним пространством.
Полоп — очаровательная деревня на побережье Коста-Бланка, известная своей традиционной атмосферой и природной красотой. Вилла находится недалеко от всех удобств Ла-Нучи, включая магазины, рестораны, спортивные центры и школы. Пляжи и оживленные прибрежные города, такие как Бенидорм и Альтеа, находятся всего в 15 минутах езды.
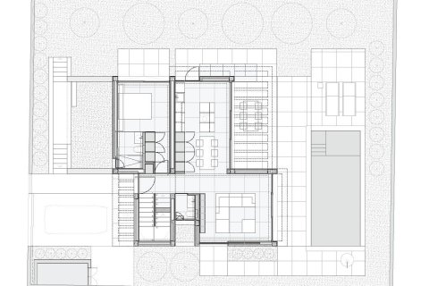
Тщательно продуманная планировка на трех уровнях
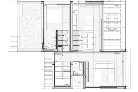
На первом этаже вас встречает прихожая со встроенным шкафом и гостевым туалетом. На этом уровне находится одна спальня с ванной комнатой и подъемными окнами от пола до потолка, выходящими на частную боковую террасу.
Светлая открытая гостиная и столовая напрямую соединяются с террасой, покрытой перголой, и частным бассейном с морской водой, создавая гармоничный стиль жизни внутри и снаружи дома.
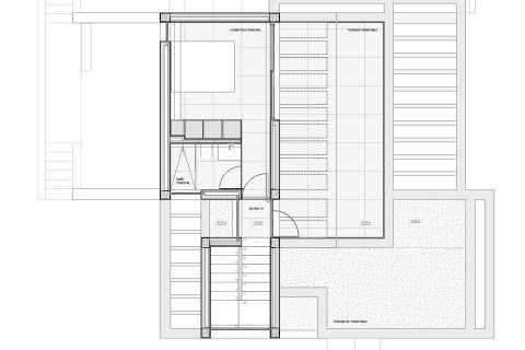
Верхний этаж предназначен исключительно для главной спальни. Этот частный уровень предлагает спальню с ванной комнатой и выходом на впечатляющую террасу площадью 40 м2 с захватывающим панорамным видом на море и горы, обеспечивая максимальную конфиденциальность и комфорт.
На цокольном этаже расположены две дополнительные спальни с большими окнами, выходящими на красиво оформленный заглубленный двор, который наполняет пространство естественным светом. Общая ванная комната, полностью оборудованная прачечная с техникой Haier и две просторные технические и кладовые комнаты дополняют этот этаж.
Премиум-оснащение и энергоэффективность
Вилла включает в себя высококачественную отделку и передовые системы, такие как:
Центральная кухня с островком и встроенной бытовой техникой BOSCH
Столешницы из натурального камня внутри и снаружи
Панорамные окна с солнцезащитным армированным стеклом
Аэротермальная система кондиционирования Mitsubishi
Предварительная установка подогрева полов
Класс энергоэффективности A
Предварительная установка системы «умный дом»
Частная парковка на два автомобиля
Ландшафтный средиземноморский сад с автоматической системой полива и элегантный внутренний двор на нижнем уровне создают атмосферу уединения и релаксации. Крыша подготовлена для установки солнечных панелей.
Отличное расположение и расстояния
Центр Полопа 2 км
Ла-Нусия 4 км
Пляжи Бенидорма 12 км
Альтеа 10 км
Villaitana Golf 14 км
Аэропорт Аликанте 65 км
Откройте для себя свой частный рай в Полопе
Эта современная вилла с видом на море предлагает дизайн, уединение и комфорт в одном из самых привлекательных природных уголков Коста-Бланки. Свяжитесь с нами сегодня, чтобы договориться о частном просмотре и обеспечить себе новый дом в Ла Альберка Полоп.
Верхний этаж предназначен исключительно для главной спальни. Этот частный уровень предлагает спальню с ванной комнатой и выходом на впечатляющую террасу площадью 40 м2 с захватывающим панорамным видом на море и горы, обеспечивая максимальную конфиденциальность и комфорт.
На цокольном этаже расположены две дополнительные спальни с большими окнами, выходящими на красиво оформленный заглубленный двор, который наполняет пространство естественным светом. Общая ванная комната, полностью оборудованная прачечная с техникой Haier и две просторные технические и кладовые комнаты дополняют этот этаж.
Премиум-оснащение и энергоэффективность
Вилла включает в себя высококачественную отделку и передовые системы, такие как:
Центральная кухня с островком и встроенной бытовой техникой BOSCH
Столешницы из натурального камня внутри и снаружи
Панорамные окна с солнцезащитным армированным стеклом
Аэротермальная система кондиционирования Mitsubishi
Предварительная установка подогрева полов
Класс энергоэффективности A
Предварительная установка системы «умный дом»
Частная парковка на два автомобиля
Ландшафтный средиземноморский сад с автоматической системой полива и элегантный внутренний двор на нижнем уровне создают атмосферу уединения и релаксации. Крыша подготовлена для установки солнечных панелей.
Отличное расположение и расстояния
Центр Полопа 2 км
Ла-Нусия 4 км
Пляжи Бенидорма 12 км
Альтеа 10 км
Villaitana Golf 14 км
Аэропорт Аликанте 65 км
Откройте для себя свой частный рай в Полопе
Эта современная вилла с видом на море предлагает дизайн, уединение и комфорт в одном из самых привлекательных природных уголков Коста-Бланки. Свяжитесь с нами сегодня, чтобы договориться о частном просмотре и обеспечить себе новый дом в Ла Альберка Полоп.
Расположение
- Близко к пляжу
- Близко к торговым центрам
- Близко к школе
- Вид на море
Особенности
- Терраса
- Полностью оборудованная кухня
- Частный бассейн
- Подвальный этаж
Внутренняя инфраструктура
- Детская игровая комната
- Прачечная
Внешняя инфраструктура
- Закрытый двор
- Парковка
- Сад
- Бассейн
- Солярий
Написать продавцу
ГородПолоп
ТипВилла
Спален4
Площадь208 м²
Площадь участка400 м²
До моря8 км
полная стоимость
- полная стоимость
- цена за м²
€ 970 000
- EUR €
- USD $
- RUB ₽
- NOK kr
- GBP £
Похожие проекты
-
Спален: 4Ванных: 3Площадь: 208 м²Расстояние до моря: 8 км
-
Спален: 4Ванных: 3Площадь: 208 м²
-
Спален: 4Ванных: 3Площадь: 208 м²
-
Спален: 4Ванных: 3Площадь: 208 м²
























.jpg)