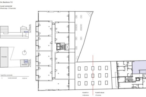
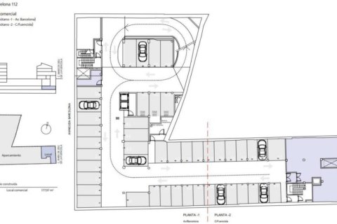
Lokal usługowy w Barcelona, Hiszpania 1773 mkw. nr 140876
234

ID140876
€ 1 938 000
- EUR €
- USD $
- RUB ₽
- NOK kr
- GBP £
Skontaktuj się ze sprzedającym
MiastoBarcelona
TypLokal usługowy
Metraż1773 m²
wartość całkowita
- wartość całkowita
- cena za metr kwadratowy
€ 1 938 000
- EUR €
- USD $
- RUB ₽
- NOK kr
- GBP £
Podobne projekty











