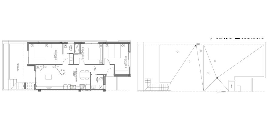
Penthouse floor plan «3BR-33», 3 bedrooms in OASIS LAGUNA 3


€ 273 000
- EUR €
- USD $
- RUB ₽
- NOK kr
- GBP £
Sijainti
- lähellä rantaa
- lähellä ostoskeskuksia
- mahtava sijainti
- lähellä ravintoloita
Kuvaus
- parveke
- Tuuletin
- täysin sovitettu keittiö
- keittiölaitteet
- yksityinen uima-allas
Sisätilat
- varastohuone
- toimistot ja kodinhoitohuoneet
- Kylpylä
- yksityinen kuntosali
- Maanalainen pysäköintialue
Ulkotilat
- myymälä
Huoneistot tällä pohjalla
Lajittele
Ota yhteyttä myyjään
kaupunkiCalpe
Makuuhuoneita1
Asuintila55.11 m2
merelle400 m
valmistumispäiväI neljännes, 2028
hinta
- hinta
- per m2
€ 273 000
- EUR €
- USD $
- RUB ₽
- NOK kr
- GBP £
Myyjä
YAN VAYNRUCH