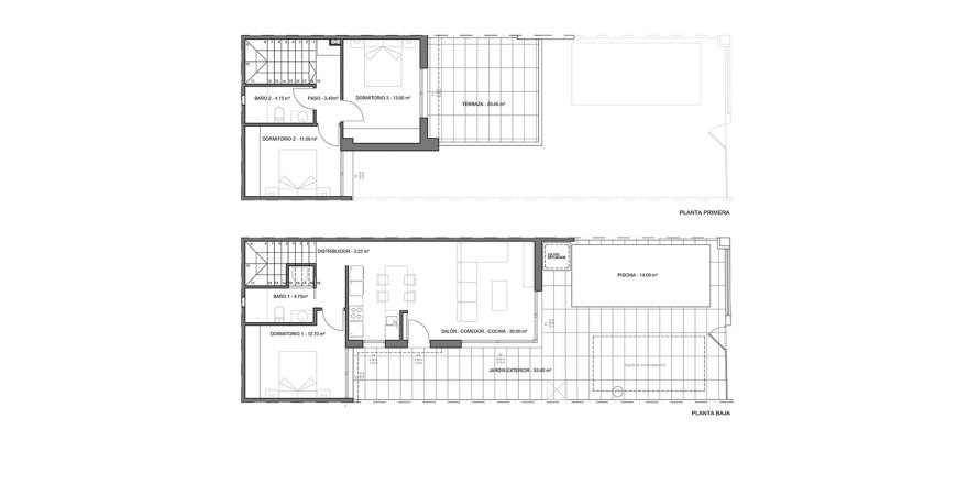
Villa floor plan «3BR-4», 3 bedrooms in Residencial Rosa Morada
70


€ 369 000
- EUR €
- USD $
- RUB ₽
- NOK kr
- GBP £
Kuvaus
- videosisäpuhelin
- teräksinen etuovi
- PVC tuplalasitetut ikkunat
- sähkösulkimet
- Lämmitys- ja äänieristeet seinissä
- satiinimaalatut seinät
- madallettu katto
- LED-valaistus
- Suihkukaappi kylpyhuoneessa
- Kylpyhuonekalusteet
- sadesuihku
- Terassi
- Kattoterassi
- TV
- Puhelin
- Internet
- kaapelivalmius
- Kaikki laitteet
- Pesukone
- Jääkaappi
- Mikro
- Amerikkalainen keittiö
- Uuni
- Astianpesukone
- Sisäänrakennettu keittiö
- keittiölaitteet
- sisäänrakennetut keittiölaitteet
- yksityinen uima-allas
- lattia
Huoneistot tällä pohjalla
Lajittele
Ota yhteyttä myyjään
kaupunkiSantiago de la Ribera
Makuuhuoneita3
Asuintila104.25 m2
merelle1500 m
valmistumispäivä III neljännes, 2027
hinta
- hinta
- per m2
€ 369 000
- EUR €
- USD $
- RUB ₽
- NOK kr
- GBP £
Myyjä
Property&Co Expert