Apartamento en Rincón de la Victoria, Málaga, España 1 dormitorio, 60 m2 No. 155790
52

ID155790
€ 230 000
- EUR €
- USD $
- RUB ₽
- NOK kr
- GBP £
Ubicación
- Cerca del aeropuerto
- Vista al mar
Características
- Lugares preparados para instalar persianas
- Aire acondicionado
- Cocina americana
Instalaciones interiores
- Restaurante
- Almacén
- Baño turco
- Centro comercial
Instalaciones exteriores
- Jardín comunitario
- Duchas
- Solarium
- Zona común con piscina
Contactar con el vendedor
CiudadRincón de la Victoria
TipoApartamento
Dormitorios1
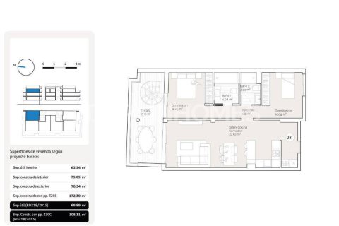
Espacio vital60 m2
Fecha de finalizaciónI barrio, 2028
Precio
- Precio
- por m²
€ 230 000
- EUR €
- USD $
- RUB ₽
- NOK kr
- GBP £
Ofertas similares
-
Dormitorios: 1Baños: 1Espacio vital: 60 m2
-
Dormitorios: 1Baños: 1Espacio vital: 60 m2
-
Dormitorios: 1Baños: 1Espacio vital: 60 m2 Distancia al mar: 150 m
-
Dormitorios: 1Baños: 1Espacio vital: 60 m2 Distancia al mar: 150 m




































