Apartamento en Cubelles, Barcelona, España 4 dormitorios, 120 m2 No. 154114
89

ID154114
€ 399 000
- EUR €
- USD $
- RUB ₽
- NOK kr
- GBP £
Descripción de la propiedad
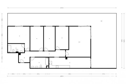
Bienvenido a esta espectacular planta baja de 120m2 ubicada en primera línea de mar, un auténtico paraíso frente a las olas que ofrece una experiencia única de vida junto al océano. Con un diseño exquisito y detalles cuidadosamente seleccionados, esta residencia te brinda el lujo de disfrutar cada día con vistas impresionantes y acceso directo a la playa.La propiedad cuenta con cuatro habitaciones, entre las cuales se destaca una impresionante suite principal. Cada habitación está diseñada para ofrecer comodidad y privacidad, con detalles modernos y amplios ventanales que permiten la entrada de la luz natural y ofrecen vistas incomparables del mar.
La cocina, equipada con las últimas comodidades, cuenta con una salida directa al jardín, donde podrás disfrutar de momentos culinarios al aire libre con la frescura del mar como telón de fondo. El salón, también con acceso al jardín, se presenta como el espacio perfecto para relajarse y disfrutar de la compañía de amigos y familiares mientras contemplas las impresionantes puestas de sol sobre el horizonte marino.
El jardín privado es un oasis de tranquilidad, donde la brisa marina acaricia suavemente las plantas y los árboles, creando un ambiente sereno y relajante. Con la posibilidad de disfrutar de la piscina comunitaria, cada día será una oportunidad para sumergirse en aguas refrescantes mientras contemplas el mar a lo lejos.
La propiedad también incluye una plaza de parking y un trastero, garantizando comodidad y espacio para tus pertenencias. Desde la comodidad de tu hogar, podrás experimentar el estilo de vida costero en su máxima expresión, donde la playa, la brisa del mar y la belleza natural se convierten en parte integral de tu día a día.
En resumen, esta planta baja en primera línea de mar ofrece no solo un hogar, sino un
Ubicación
- Ground floor
Características
- Balcón
- Terraza
- Cable ready
Instalaciones interiores
- Aparcamiento privado
Instalaciones exteriores
- Piscina
Contactar con el vendedor
CiudadCubelles
TipoApartamento
Dormitorios4
Espacio vital120 m2
Zona del terreno160 m2
Precio
- Precio
- por m²
€ 399 000
- EUR €
- USD $
- RUB ₽
- NOK kr
- GBP £
The property may have been sold or its price changed
Ofertas similares
-
Dormitorios: 4Baños: 2Espacio vital: 120 m2
-
Dormitorios: 4Baños: 2Espacio vital: 120 m2
-
Habitaciones: 5Dormitorios: 4Baños: 3Espacio vital: 120 m2
-
Dormitorios: 4Baños: 2Espacio vital: 120 m2 Distancia al mar: 500 m



































