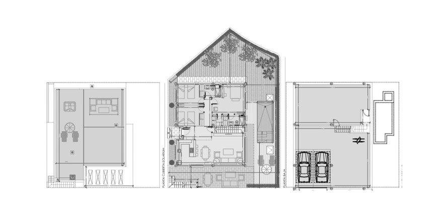
Villa floor plan «3BR-25», 3 bedrooms in Sunset Lake Views
101


€ 645 000
- EUR €
- USD $
- RUB ₽
- NOK kr
- GBP £
Ubicación
- Cerca de la playa
- Cerca del campo
- Cerca de centros comerciales
- Cerca del centro de la ciudad
- Cerca de los colegios
- Cerca de la guardería
- En zona rural
- Gran ubicación
- Cerca de la escuela
- Vista a la montaña
- Vista al mar
- Vista panorámica
- Vista hermosa
Características
- Balcón
- Terraza en la azotea
- Piscina privada
Instalaciones interiores
- Amigable para los niños
- Garaje
Apartamentos con este plano
Ordenar por
Contactar con el vendedor
CiudadTorrevieja
Dormitorios3
Espacio vital141,56
Al mar2000 m
Al centro de la ciudad9000 m
Fecha de finalización II barrio, 2026
Precio
- Precio
- por m²
€ 645 000
- EUR €
- USD $
- RUB ₽
- NOK kr
- GBP £
Vendedor
Roman