Bungalow i Puerto de Mazarron, Murcia, Spanien 2 sovrum, 64 kvm. Nr. 143439
173

ID143439
€ 221 000
- EUR €
- USD $
- RUB ₽
- NOK kr
- GBP £
Fastighetsbeskrivning
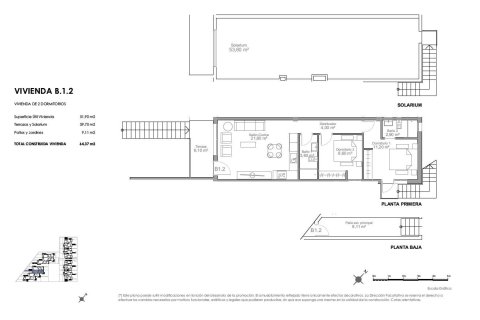
Nybyggda bostäder bara 200 meter från stranden i Puerto de MazarrónExklusivt kustliv i Costa CálidaVi presenterar ett nytt bostadsområde med moderna bostäder i Puerto de Mazarrón, beläget bara 200 meter från den vackra Playa Negra. Beläget i ett av de mest eftertraktade kustområdena i Murcia-regionen, erbjuder detta projekt en exceptionell möjlighet att njuta av medelhavslivet nära havet, viktiga bekvämligheter och natursköna omgivningar.Puerto de Mazarrón är känt för sina fantastiska stränder, kristallklara vatten, charmiga småbåtshamn och avslappnade atmosfär. Med utmärkta tjänster, friluftsmöjligheter och ett varmt klimat året runt är det en idealisk destination för både permanent boende och semesterresor.Modern design och funktionella planlösningarDetta exklusiva bostadsområde består av 30 moderna bostäder med 2 sovrum och 1 eller 2 badrum, noggrant utformade för att erbjuda komfort, stil och effektivitet. Det låga komplexet omfattar lägenheter på bottenvåningen med privata terrasser och trädgårdar, samt lägenheter på första våningen med terrasser och privata takterrasser. Husen har privata parkeringsplatser antingen på fastigheten eller inom bostadsområdet.Lägenheterna är utformade för att maximera det naturliga ljuset, med öppna vardagsrum, stora fönster och exklusiva ytbehandlingar. Den första fasen erbjuder anpassningsbara lägenheter med funktionella planlösningar som kan anpassas efter dina livsstilsbehov.Bostäderna på bottenvåningen har en privat trädgård, bakgård och parkering på tomten eller gemensam parkering.Bostäderna på översta våningen har en privat entré på bottenvåningen, terrass på första våningen och solarium på taket, samt tilldelad parkering.Tillval inkluderar privata pooler på terrasserna på bottenvåningen eller jacuzzier på solariumen.Högkvalitativa specifikationerVarje fastighet harFörstärkt entrédörrFörinstallation för luftkonditioneringKompletta badrum med möbler, spegel och duschväggarUtomhusutrymmen utformade för grillning, pergolor och avkopplingsområdenDetta bostadsområde erbjuder en säker, familjevänlig och etablerad miljö, inom gångavstånd från stormarknader, skolor, sjukvård, parker och stranden.Utmärkt läge i Puerto de MazarrónAvstånd till viktiga sevärdheterPlaya Negra 0,2 kmMazarrón Marina 2 kmMazarrón Park Shopping Centre 5 kmCartagena 35 kmMurcia City 70 kmMurcia Corvera Airport 45 kmGolfbanor Camposol och Hacienda del Álamo 25–35 kmNjut av vattensporter, vandring och cykling i den närliggande Sierra de las Moreras och upptäck det bästa av Costa Cálidas livsstil.Gör Medelhavet till ditt hemMissa inte chansen att säkra en nybyggd fastighet bara några steg från stranden i Puerto de Mazarrón. Kontakta oss idag för information om tillgänglighet, detaljer och visningsbokningar.
Läge
- Nära till stranden
- Nära till busshållsplatsen
- Nära till köpcentrum
- Nära skola
- Utsikt över havet
Egenskaper
- Terrass
- Luftkonditionering
- Fullt utrustat kök
- Med möblerade
Utomhus faciliteter
- Inhägnad
- Parkering
- Trädgård
- Solarium
Kontakta företaget
StadPuerto de Mazarron
TypBungalow
Sovrum2
Bruksområde64 m2
Areal9 m2
Till havet200 m
Full pris
- Full pris
- priset på kvadratmeter
€ 221 000
- EUR €
- USD $
- RUB ₽
- NOK kr
- GBP £
Liknande erbjudande
-
Sovrum: 2Badrum: 2Bruksområde: 64 m2Avstånd till havet: 180 m
-
Sovrum: 2Badrum: 2Bruksområde: 64 m2Avstånd till havet: 200 m
-
Sovrum: 2Badrum: 2Bruksområde: 64 m2Avstånd till havet: 180 m
-
Sovrum: 2Badrum: 2Bruksområde: 64 m2













