Villa i Moraira, Alicante, Spanien 3 sovrum, 242 kvm. Nr. 141483
178

ID141483
€ 1 650 000
- EUR €
- USD $
- RUB ₽
- NOK kr
- GBP £
Fastighetsbeskrivning
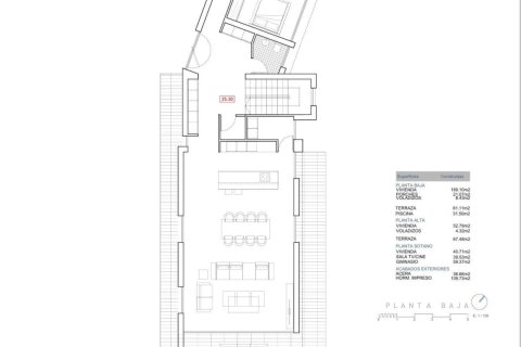
Modern nybyggd lyxvilla nära havet i Moraira Samtida stil och minimalistisk design Denna moderna nybyggda villa i Moraira utmärker sig genom sin minimalistiska arkitektur, eleganta linjer och en harmonisk kombination av material som natursten, trä och glas. Bara 300 meter från havet erbjuder den en ljus och sofistikerad miljö med stora fönster från golv till tak som perfekt förbinder interiören med utomhusområdena och gör det möjligt att njuta av rikligt med naturligt ljus hela dagen. Öppna ytor och medelhavsliv utomhus Bostaden är fördelad på två våningar och erbjuder öppna rum som är utformade för komfort och medelhavsliv. Det öppna vardagsrummet och matsalen vetter direkt mot terrasserna och den privata poolen, vilket skapar ett perfekt utrymme för att koppla av, sola eller njuta av kvällar utomhus. Utomhusområdet erbjuder ett elegant täckt vardagsrum, solterrass och en välskött trädgård som garanterar avskildhet och lugn. Funktionell planlösning och premiumfinish Denna villa har 3 sovrum, 2 badrum och 1 gästtoalett. På bottenvåningen finns två sovrum, ett badrum, en toalett och de rymliga gemensamma utrymmena, inklusive ett fullt utrustat öppet kök, tvättstuga och skafferi. På övervåningen ligger mastersviten, ett privat utrymme med eget badrum, klädkammare och en rymlig terrass på 67 m2 där du kan njuta av den öppna utsikten och den charmiga naturen. Det finns möjlighet att lägga till en källare på begäran, idealisk för att skapa ett gym, en biograf eller extra förvaringsutrymme.
Privilegierat läge i Moraira
Beläget i ett lugnt bostadsområde, nära Playa La Galera och med supermarket och service inom gångavstånd, erbjuder denna fastighet utmärkta förbindelser till de viktigaste sevärdheterna på norra Costa Blanca. Moraira utmärker sig för sin medelhavscharm, stränder med kristallklart vatten, småbåtshamn, vandringsleder och restauranger med högklassig mat.
Sevärdheter i närheten:
Alicante flygplats 92 km
Valencia flygplats 125 km
Ifach golfklubb 4 km
Moraira marina 2 km
En unik möjlighet på Costa Blanca
Denna villa är perfekt som permanentbostad, semesterboende eller premiuminvestering i ett av Medelhavets mest exklusiva områden. Kontakta oss idag för mer information och boka en visning.
Läge
- Nära till stranden
- Nära till köpcentrum
- Nära skola
Egenskaper
- Terrass
- Luftkonditionering
- Åskledare
Inomhus faciliteter
- Tvätt
Utomhus faciliteter
- Inhägnad
- Parkering
- Trädgård
- Pool
- Solarium
Kontakta företaget
StadMoraira
TypVilla
Sovrum3
Bruksområde242 m2
Areal885 m2
Till havet300 m
Full pris
- Full pris
- priset på kvadratmeter
€ 1 650 000
- EUR €
- USD $
- RUB ₽
- NOK kr
- GBP £
Liknande erbjudande
-
Sovrum: 3Badrum: 2Bruksområde: 242 m2Avstånd till havet: 300 m
-
Sovrum: 3Badrum: 3Bruksområde: 242 m2
-
Sovrum: 3Badrum: 3Bruksområde: 242 m2
-
Sovrum: 3Badrum: 3Bruksområde: 242 m2









