Lägenhet i Torrevieja, Alicante, Spanien 2 sovrum, 82 kvm. Nr. 135740
307

ID135740
€ 259 000
- EUR €
- USD $
- RUB ₽
- NOK kr
- GBP £
Fastighetsbeskrivning
Moderna nybyggda lägenheter i hjärtat av Torrevieja, bara 600 meter från havetExklusivt boutique-projekt i centrala TorreviejaUpptäck ett exklusivt bostadsprojekt med endast 7 moderna nybyggda lägenheter, idealiskt beläget i det livliga centrumet av Torrevieja, Alicante. Bara 600 m från strandpromenaden kombinerar dessa eleganta bostäder perfekt fördelarna med att bo vid kusten med bekvämligheten i en urban livsstil, med enkel tillgång till butiker, restauranger och fritidsaktiviteter.Modern design och smarta planlösningarVälj mellan lägenheter med 1 eller 2 sovrum, alla med 2 badrum (ett en-suite). De öppna planlösningarna är utformade för att maximera utrymmet och det naturliga ljuset, vilket garanterar både komfort och funktionalitet. Premiumfinish som säkerhetsdörrar, inbyggda garderober med textilfinish, aluminiumfönster med termisk brytning och motoriserade fönsterluckor i vardagsrummet garanterar hållbarhet och stil. Kök och badrum har högkvalitativa inredningsdetaljer, med duschväggar och inbyggda speglar. Förinstallerad luftkonditionering för komfort året runt.Exklusiva bekvämligheter för boendeDenna moderna byggnad har utformats för bekvämlighet och avkoppling. Boende kan njuta av:Solarium på taket med gemensam poolParkeringsplats för cyklar och e-scootrar på bottenvåningenHiss med tillgång till alla våningar, inklusive taketDynamisk livsstil på Costa BlancaTorrevieja är en livlig kuststad känd för sitt soliga klimat med över 300 soldagar per år, kulturevenemang och medelhavslivsstil. Dess stränder, småbåtshamn, promenader och vattensportanläggningar gör det till en idealisk plats att bo permanent eller njuta av en semester. Alla viktiga tjänster som stormarknader, kaféer, skolor och vårdcentraler ligger inom gångavstånd.Utmärkt läge och förbindelserDetta privilegierade läge garanterar snabb tillgång till viktiga destinationer:Promenaden: 600 mPlaya del Acequión: 1 kmTorrevieja Marina: 600 mZenia Boulevard Shopping Center: 8 kmGolfbanor: 7–10 kmAlicante International Airport: 45 kmDitt medelhavshem väntarOavsett om du letar efter ett semesterboende, en smart investering eller en permanent bostad, erbjuder dessa moderna nybyggda lägenheter i Torrevieja en enastående möjlighet i ett av de mest eftertraktade områdena på Costa Blanca.Kontakta oss idag för att boka en visning och säkra ditt nya hem i detta exklusiva projekt i stadens centrum.
Läge
- Nära till stranden
- Nära till busshållsplatsen
- Nära till köpcentrum
- Nära skola
Egenskaper
- Terrass
- Luftkonditionering
- Fullt utrustat kök
Inomhus faciliteter
- Hiss
Utomhus faciliteter
- Pool
- Solarium
Kontakta företaget
StadTorrevieja
TypLägenhet
Sovrum2
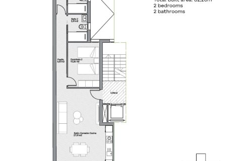
Bruksområde82 m2
Till havet1 Km
Full pris
- Full pris
- priset på kvadratmeter
€ 259 000
- EUR €
- USD $
- RUB ₽
- NOK kr
- GBP £
Liknande erbjudande
-
Sovrum: 2Badrum: 2Bruksområde: 82 m2Avstånd till havet: 1 Km
-
Rum: 3Sovrum: 2Badrum: 2Bruksområde: 82 m2Lägenheter i Torrevieja Alicante ligger i ett projekt 200 m från havet. Projektet har en takpool, solterrass, hiss och mer. Mer info
-
Sovrum: 2Badrum: 2Bruksområde: 82 m2Avstånd till havet: 1 Km
-
Sovrum: 2Badrum: 2Bruksområde: 82 m2

















